


30FT CONTAINER HOUSE
Discover the 30FT Container house: a perfect balance of luxury, space and affordability. Bridging our 20FT and 40Ft models, it offers spacious, sophisticated living for a variety of needs.
ONLY $6200 🚿🛏️🛋️🚽
__________________________________________________________________
2BEDROOM
FOR $6200
Including GST
Looking for a compact living solution? The Studio brings you the essence of modern comfort and efficient design, ready to be delivered anywhere in New Zealand.Indulge in the convenience of a smaller,stylish portable home that maximises every square meter. With The Studio, you can create a modern, comfortable living space in any location you desire




KEY FEATURES:
· Compact design for mobile living
· Plug-and-play.
· Pre-wired & pre-plumbed.
· Complete bathroom with shower, vanity & toilet
· Fully functioning kitchenette


Create more living space!
A great way to add more living space to your land. It is fully plug-and-play with a kitchenette, shower, toilet and 2 sinks.
Customise to your taste!
Choose from various claddings, colors, and flooring options. Opt to exclude the kitchen and bathroom for use as an office or beauty studio.


HOW It works(simplified)






1. Choose Your Design
Pick from our range of modern, space-efficient layouts. Floorplans are customisable to suit your taste just ask).
2. We Build Off-Site
Your home is built in a controlled factory environment to ensure quality, affordability and speed.
3. Deilvered To Site
Once built your home is delivered, ready to be installed and connected in day.
WHAT'S INCLUDEDE


Coving










Switchbox
Dual Showerheads
Pull-down Sink Mixer
Grey Timber Style Vinyl
Flyscreens












Benchtop &Cupboards
Overhead Cabinets
Flushing Toilet












Vanity with Storage
Steel Dish Rack
Plumbing Connections
Powerpoints with USB
LED Oyster Lights
Container Style Feet
Sliding Windows
Stainless Steel Sink
Caravan Plug(Optional)












Bathroom Extractor Fan
Lockable Sliding Door
Sliding Shower Door
Bathroom Sink & Mixer
Light Switches
Timber Style Cladding (Optional)
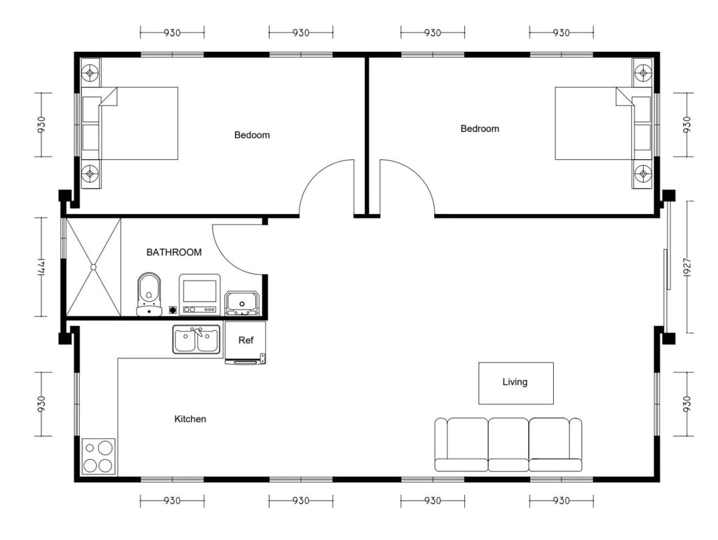
30FT FLOOR PLAN
30FT Container house presents a meticulously designed floor plan thatmaximizes every inch of its 30㎡ space, featuring a cozy sleeping area,a fully equipped kitchenette,and a compact yet completebathroom. This layout ensures comfort and functionality, providinga seamless flow between daily activities in a modemn, space-efficient unit.
2 Bedroom $6200
Floor Plan with dimensions (cm)




*floor plans may vary slightly due to availability, exact floorplan will be provided before purchase.
SPECIFICATIONS
WHAT'S INCLUDED WITH THE STUDIO
GENERAL
INTERIOR LIVING
Sliding glass and lockable aluminium entry door
Entry Door
Windows
Aluminium double-glazed windows with fly screens
Electrical
AS/NZS purple-coded electrical cable,power points & power board
Frame
Galvanised steel frame, epoxy treated & acrylic painted
Roof
EPS insulation, galvanised & painted steel
Walls
Sandwich panels with 75mm EPS wall insulation
Floor
Water & insect resistant magnesium concrete composite
Lighting
6x LED oyster lights supplied
KITCHEN
Cabinetry
Soft closing kitchen cabinets
Sink
Stainless steel sink and tap
Benchtop
20mm Quartz stone benchtops
75mm EPS wall insulation, roof center section has EPS insulation, side roof 50mm insulation. Rockwool and glasswool available.
Insulation
Floor covering
Timber looking PVC vinyl
BATHROOM
Shower
Corner shower, shower rail, rainmaker shower head and frosted privacy glass door
Toilet
Soft close toilet lid
Vanity
Sink with stainless steel tap and vanity with mirror
INSTALLATION
Installation
Easy set up and installation
Guide
Detailed step by step instructions included

HOW TO SET UPYOUR CONTAINER HOUSE
Once your Container house arrives, installation is easy. It unfolds from a container intoyour new living space. Due to its weight,you'll need a team of at least six, andunfolding takes about 45 minutes, withthe full fit-out taking around 6 hours. All units come prewired and preplumbed,requiring only simple exterior connections. Qualified installers areavailable across most of New Zealand if needed.
OUR RANGE
Every Expander arrives at your doorstep 95% complete, outfitted with pre-plumbing, pre-wiring, and fully equipped with a finished bathroom and kitchenfor your convenience.
THE STUDIO
DESIGNERPOD
From $4500
From $4800
From $4800
From $6200
From $8800
From $9600
20FT CONTAINER HOUSE
30FT CONTAINER HOUSE
40FT CONTAINER HOUSE
20FT TWO-STORY CONTAINER HOUSE
OUR4 STEP PROCESS
01 REQUEST QUOTE
Select your desired unit with anyadditional features & delivery. Receive your final quote so you can arrange finances.
02 CONFIRM QUOTE
Carry out your due diligence,confirm you are satisfied & readyto proceed. We will then jump ona quick call to confirm.
03 START BUILD
Once we have received paymentwe will begin your build.Depending on our capacity thismay take up to 3 months.
04 WE DELIVER
Depending on your delivery method, we will either deliver yourExpander to you or you can pick itup from our Christchurch yard.



Looking for something different?
Portable Container Homes from $6200
_________________________________________________________________________________________________________________________________________________________________________
Get Instant Pricing,Floor plans
& Full Brochure!




Email:findhomefh@gmail.com
Phone:8618942654923
















